欢迎您进入合肥国瑞集成建筑科技有限公司官网!
-
-
-
-
-
-
技术研发近年来,公司不断加大研发投入,研发费用比例高达12.5%。花数百万元配备了先进齐全的科研设备,设立了企业研发中心。公司积极引进人才和先进技术,从强化人才培养、强化科技创新、强化产品研发、强化产品质量入手,全面提升企业竞争力。公司科研团队先后引进了钢结构装配式建筑领域知名专家丁成章教授等高端人才,全力打造一流科研创新团队
-
建筑体系冷弯型钢结构体系是一种密肋型板墙体系,源于轻木结构。该体系以“肋”(间距一般为400~600 mm的冷弯型钢墙柱、楼盖梁和屋盖梁)承受重力荷载并要求上下对齐直接传递重力荷载,以“板”(各类剪力墙板)抵抗由地震荷载和风荷载产生的侧向作用力
-
新闻资讯
联系方式
装配式钢结构标准化村卫生室建造过程赏析
村卫生室建设是改善农村群众就医环境,完善农村卫生服务网络,解决村民看病难、看病贵的重要举措,是村民看得见、摸得着的惠民工程。
去年以来,长丰县以省市村卫生室标准化建设引领提升工程为契机,在全县范围内开展村卫生室标准化建设,全面提升村卫生室服务能力。目前该县部分乡镇标准化村卫生室建设采用了国瑞冷弯薄壁型钢轻聚合物复合墙体建筑技术建造,施工速度及工程质量受到各界赞誉。
今年2月9日国家卫生健康委城乡会同城乡建设部编制印发了《新型冠状病毒肺炎应急救治设施设计导则(试行)》(以下简称《导则》)。《导则》第十条提出“集中收治新型冠状病毒肺炎患者的医疗机构或临时建筑的改建、扩建和新建工程项目鼓励优先采用装配式建造方式,优先考虑轻型钢结构等装配式建筑”。
疫情过后,预计将有更多的村级准化村卫生室建设采用国瑞冷弯薄壁型钢轻聚合物复合墙体建筑技术建造。现将长丰县杨庙镇陶店村标准化村卫生室建造过程介绍如下:
项目介绍
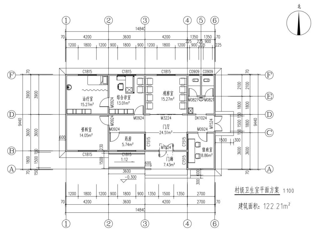
占地尺寸:14.84米×9.44米
建筑面积:122.12㎡
主体结构:装配施工钢结构
建设工期:60天

项目采用灰色墙面,橘色坡顶,线条简单,色彩明亮,符合江淮地区建筑特色。

村卫生室内设门厅、观察室、药房、综合诊室、治疗室、资料室、卫生间、值班室等功能齐全。

部分施工过程:

基坑施工▲

回填碎石▲

钢丝网防潮布施工▲

混凝土施工▲

地导轨安装▲

墙板安装▲

屋架安装▲

屋面防水保温▲

屋面瓦铺设▲

外墙找平▲

外出粉刷▲

室内墙板安装▲

地砖铺设▲




手机网站
微信公众号