欢迎您进入合肥国瑞集成建筑科技有限公司官网!
-
-
-
-
-
-
技术研发近年来,公司不断加大研发投入,研发费用比例高达12.5%。花数百万元配备了先进齐全的科研设备,设立了企业研发中心。公司积极引进人才和先进技术,从强化人才培养、强化科技创新、强化产品研发、强化产品质量入手,全面提升企业竞争力。公司科研团队先后引进了钢结构装配式建筑领域知名专家丁成章教授等高端人才,全力打造一流科研创新团队
-
建筑体系冷弯型钢结构体系是一种密肋型板墙体系,源于轻木结构。该体系以“肋”(间距一般为400~600 mm的冷弯型钢墙柱、楼盖梁和屋盖梁)承受重力荷载并要求上下对齐直接传递重力荷载,以“板”(各类剪力墙板)抵抗由地震荷载和风荷载产生的侧向作用力
-
新闻资讯
联系方式
铜陵市胥坝乡840㎡装配式仿古建筑风格会所建造过程赏析

基本信息
占地尺寸:33.54米X19.94米
建筑层数:二层
建筑面积:840.25平方米
主体结构:装配式钢结构
设计效果图
粉墙黛瓦、亭台阁楼、假山、流水、曲径,浑然天成,在有限的空间范围内利用有效的自然条件,模拟大自然的美景。

建筑造型优美,结构严谨,宏伟中不失细腻,庄严中不失优雅。

屋顶对建筑立面起着特别重要的作用。屋檐曲线、起翘的屋角(仰视屋角,角椽展开犹如鸟翅,故称“翼角”)以及硬山、悬山、歇山、庑殿、攒尖、十字脊、盝顶、重檐等众多屋顶形式的变化,使建筑物产生独特而强烈的视觉效果和艺术感染力。
镂空窗在仿古建筑中起到的是装饰作用。外来之景如画一般镶嵌“画框”之中。
一层平面图

一层设有:会议室、办公室、休息厅、客房、厨房和卫生间。
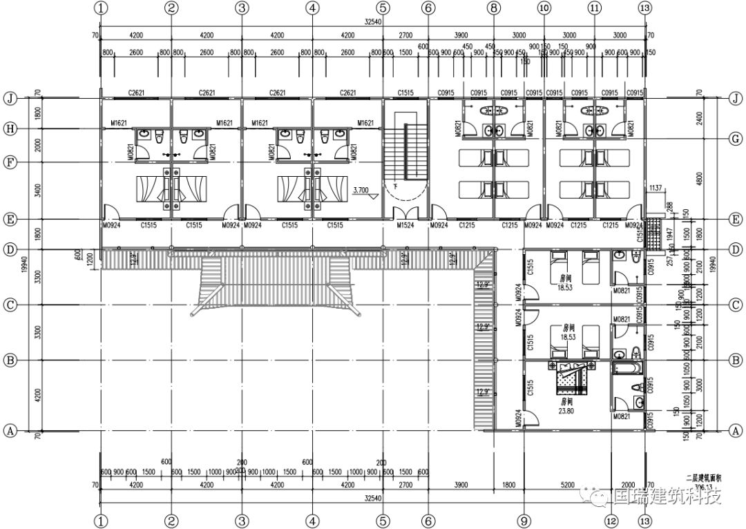
二层平面图

二层主要是休息区,设有11间客房,每间客房均带有独立卫生间和浴室。
部分施工过程

基础施工△

一层墙板吊装△

楼面梁安装△

楼面压型钢板安装△

楼梯骨架安装△

二层墙板吊装△

楼面钢丝网安装△

楼面混凝土现浇△

屋架吊装△

屋面板安装△

屋面瓦铺设△

门头飞檐造型△

马头墙△

走廊吊顶△

走廊△

中式护栏△

吊顶安装△

墙板安装△
建成实拍

门窗围栏△

走廊△

包间△

吊顶△

房间△

楼梯△
手机网站
微信公众号